
GESUNDHEITSZENTRUM SCHWERTBERG
Baubeginn 12/2023
1. PREIS Wettbewerb 2020
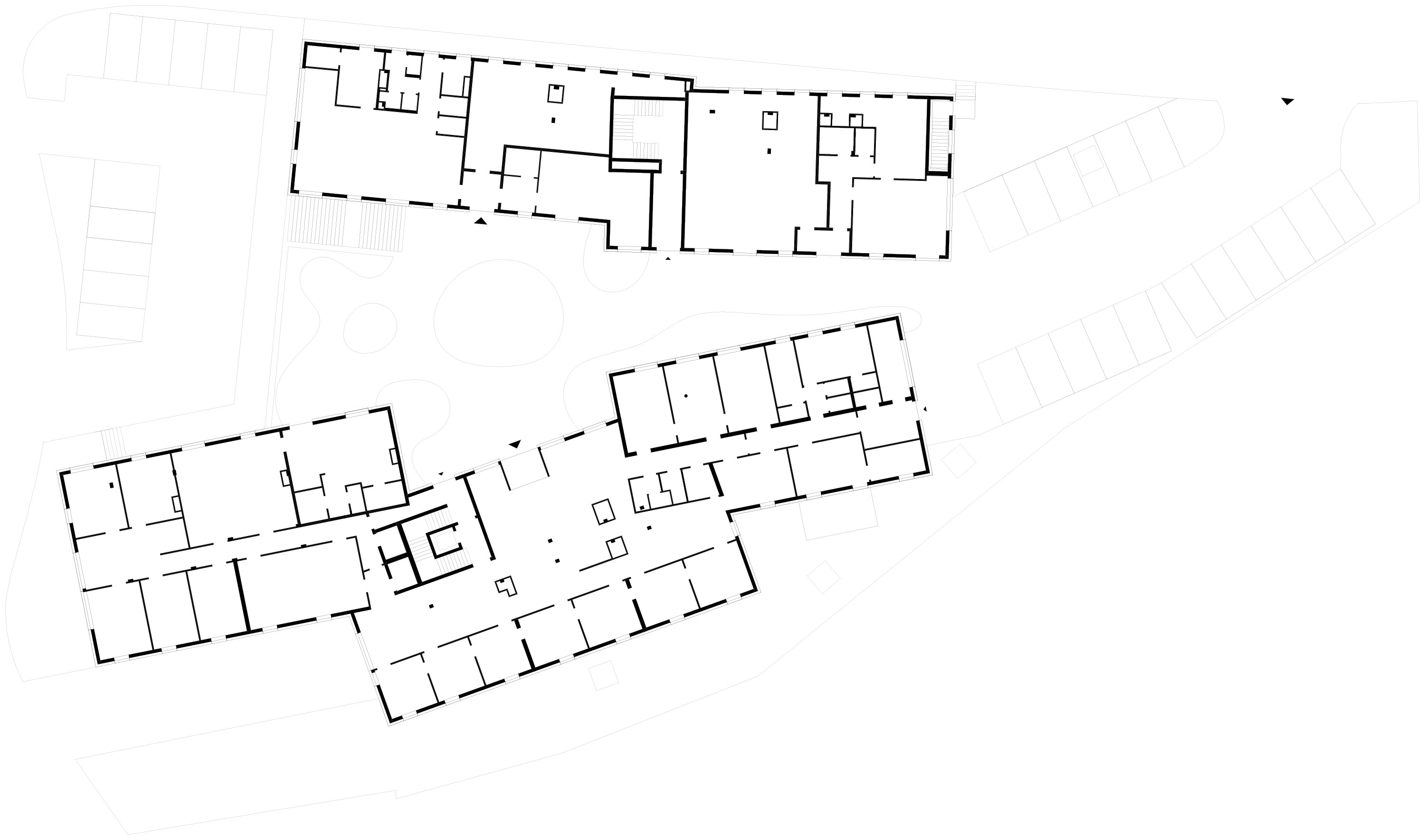
Der Entwurf des Gesundheitszentrum sieht fünf Baukörper vor, die sich gestaffelt und geringfügig zueinander verdreht den Hang des Bauplatzes in Ost-West-Orientierung hinauf zu einer Erweiterung und Stärkung des Ortszentrums von Schwertberg entwickeln. Es lässt so ein Ensemble entstehen, das die Körnung der umgebenden Bebauung aufnimmt und Plätze auf zwei Ebenen fasst. Die Konzentration von kommerzieller Nutzung und die Schaffung von öffentlichen Räumen mit Aufenthaltsqualität lässt ein Gegenstück zum Marktplatz entstehen, das auf gegenseitige Befruchtung ausgelegt ist.
Die Verbindung von Marktplatz und Gesundheitszentrum ist integraler Bestandteil des Entwurfes. Eine Promenade soll den Zusammenschluss fördern und in den kommenden Jahren umgesetzt werden. Diese Flaniermeile von Ortsplatz bis Gesundheitszentrum ist als Sequenz öffentlicher Räume konzipiert - ganz im Sinne einer Frequenzerhöhung und Verdichtung als Grundlage eines belebten Ortszentrums und findet ihre Fortsetzung im „Gassl“, das zwischen den versetzt angeordneten Volumina des Gesundheitszentrums hochführt und die Plätze miteinander verbindet.
Die jeweils zwei bzw. drei Baukörper sind in zwei Gebäudezeilen zueinander gegliedert, wobei zwischen diesen ein erhöhter Platz gebildet wird. Die Kleinteiligkeit der Baukörper wie auch die gestaffelte Höhenentwicklung durch die Hanglage erlauben eine dem Maßstab der Umgebungsbebauung angemessene Größe. Ein niedriger liegender Platz setzt das Niveau der Straße Richtung westlich gelegenem Marktplatz fort, während der, von hier aus über eine Freitreppe erschlossene höher liegende Platz, das obere Niveau der Schacherbergstraße fortsetzt. Sämtliche öffentlich zugänglichen Freiflächen sind somit barrierefrei von öffentlichen Flächen zugänglich, zugleich wird das Gesundheitszentrum zu einer fußläufigen, von der Straße abgerückten Wegeverbindung.
Der obere Platz bildet das Herzstück des Gebäudeensembles. Er wird als gepflasterter Platz gestaltet und großzügig begrünt, wobei als zentrales Element ein großkroniger Baum gepflanzt wird. Die Platzfläche liegt über den PKW-Stellplätzen, die solcherart zur Tiefgarage werden; der Platz selbst wird von motorisiertem Individualverkehr freigehalten. Hier setzt sich Richtung Osten der Platz im „Gassl“ fort.
Vier der fünf Baukörper sind dreigeschoßig konzipiert; der fünfte, als nächstliegender zu den angrenzenden Grundstücken, ist lediglich eingeschoßig und medizinisch bzw. gesundheitstechnisch genutzt. Der Hanglage und der höhentechnischen Staffelung folgend sind auch die Nutzungen gegliedert: auf dem unteren Platzniveau Flächen für Geschäfts- oder Dienstleistungslokale und dahinter, bereits im Hang verschwindend Technik- und sonstige Nebenräume, auf dem oberen Platzniveau werden medizinische Einrichtungen und Gesundheitsdienstleistungen (nebst einer weiteren Fläche für ein Bäckerei-Café) betreten, darüber entwickeln sich die Wohngeschoße. Wohnungen befinden sich jeweils in den dreigeschoßigen Baukörpern.
Insgesamt sind 26 Wohnungen untergebracht: in der nördlichen, einhüftig konzipierten Gebäudezeile sind es 10 Wohnungen, in der südlichen, zweihüftigen Gebäudezeile sind es 16 Wohnungen, jeweils um ein Stiegenhaus samt Aufzug gruppiert. Mehrheitlich sind 2-Zimmerwohnungen geplant, dazu drei 3-Zimmer-Wohnungen und eine 4-Zimmer-Wohnung. Sämtliche Wohnungen verfügen über Freiflächen, die – ausgenommen von einer Dachterrasse – als Loggien ausgebildet werden. Der Kompaktheit der einzelnen Baukörper folgend sind auch die Wohnungen kompakten Zuschnitts, um optimale Voraussetzungen für leistbares Wohnen zu bieten. Die Wohnungen sind jeweils mit besonderer Berücksichtigung der Barrierefreiheit gestaltet, wobei vor allem die Bäder ohne Umbaumaßnahmen barrierefrei genutzt werden können.
Bautechnisch sind die Baukörper mit Wärmedämmverbundsystem und Putzoberfläche gestaltet, was die ortstypischen Gestaltungsmerkmale der in Schwertberg vorherrschenden Bebauung aufgreift wie auch gleichermaßen der Wirtschaftlichkeit dient. Die architektonische Gestaltung der Fassade sieht eine klassische Lochfassade vor, die Fensterfläche sind unter Berücksichtigung der Optimierung des Wärmeenergiebedarfs reduziert und werden mit Faschen gerahmt. Die Farbigkeit sieht ein helles, warmes Beige vor, das abgestuft in seiner Helligkeit in den Faschen bis zu Weiß in den Loggien führt. Den Charakter eines kompakten, gewachsenen und öffentlichen Ortes betont weiters die Oberflächengestaltung des Platzes, dessen Fläche mit warmfärbigen und kleinteiligen Steinen gepflastert ist.Die obersten Dächer werden als extensive Gründächer ausgebildet, jene Dachflächen über der Tiefgarage, die nicht überbaut werden, sind als intensive Gründächer genutzt.









