KINDERGARTEN HÖRSCHING
2. Preis Wettbewerb 2023
KONTEXT
Die Gemeinde Hörsching ist als altes und durch stetigen Zuzug wachsendes Siedlungsgebiet wird Hörsching strukturell stark vom Flughafen und dem zugehörigen Fliegerhorst geprägt, die den Ort im Norden bzw. im Osten flankieren. Die Wachstumsrichtung ist folglich südlich vom historischen Ortskern, wo in den vergangenen Jahrzehnten verschiedene kommunale und soziale Einrichtungen errichtet wurden. Ist das historische Zentrum geprägt von Kirche und mehreren Vierkanthöfe entwickelt sich der Ort morphologisch in Ein- und Mehrfamilienhaustypologien kontinuierlich weiter die das Ortsbild in Zeilen- und Punktbebauung prägen, wohingegen die kommunalen Bauten ihrer Ausdehnung die Typologie der Höfe zitieren.
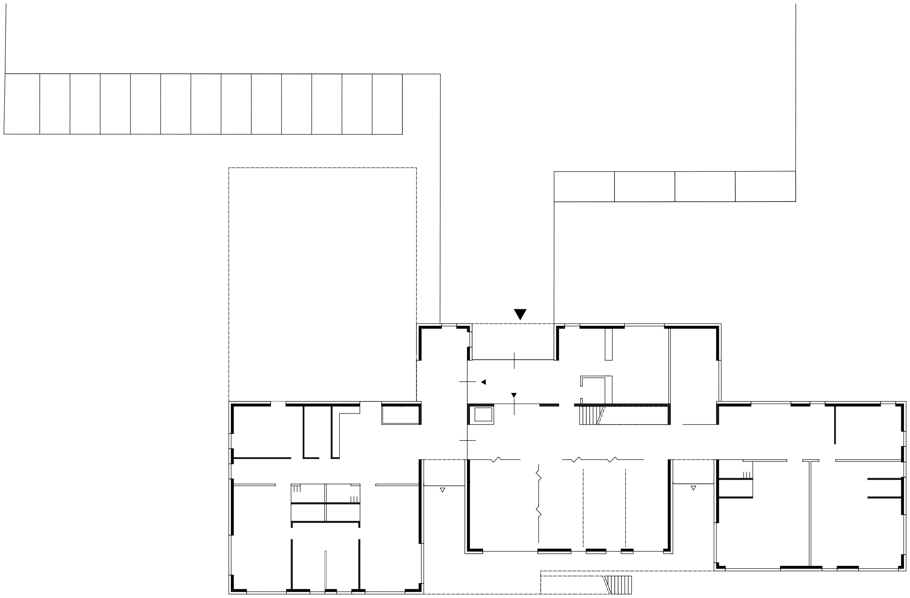
VIER HÄUSER UNTER EINEM DACH
Die neue Kinderbetreuungseinrichtung soll unmittelbar anschließend an das Schulzentrum errichtet werden. Die Erschließung erfolgt über die Schulstraße von Osten bzw. über die Eigenheimstraße westlich und mündet nördlich des Baufeldes in einen Vorplatz, der im Vollausbau süd- und westseitig von der Kinderbetreuungseinrichtung und ostseitig vom geplanten neuen Turnsaal zu einer Hofsituation eingefasst werden wird.
Der Entwurf sieht drei, im Vollausbau vier subtil zueinander versetzte Bauelemente vor, die in ihrer Körnung die Maßstäblichkeit des Baukörpers auf kindergerechte Größe übersetzt und zugleich der kleinteiligeren, angrenzenden Punktbebauung gerecht wird. Durch die Zusammenfassung über horizontale Dach- und Deckenelemente wird verbindend zu den länger gestreckten öffentlichen Gebäuden Bezug genommen. Damit wird die neue Kinderbetreuungseinrichtung als vermittelndes Element zwischen den naheliegenden Bebauungsformen begreifbar.
DIALOGE
Der dialogische Bezug zur Umgebung setzt sich im Inneren fort. Der Zugang erfolgt gedeckt über den zentralen Baukörper, der hier eingeschoßig die adressbildende Situation herstellt. Der Windfang bildet gleich nach Betreten jenes Gelenk, das die zweigruppige Krabbelstube und den fünfgruppigen Kindergarten miteinander verschränkt wie auch die die beiden Einrichtungen voneinander differenziert. Rechterhand liegt die Krabbelstube mit zugehörigem Leitungsbüro, linkerhand der Kindergarten mit dessen Leitungsbüro sowie den Personalräumen. Die Aula ist mittig im Gebäude, an sieschließen sich der Mehrzweckraum mit Küche sowie die Multiräume an, die sich zum Garten hin öffnen. Diese können durch mobile Trennwände bzw. Leichtbauwände miteinander verbunden werden.
Die Garderoben und Gangbereiche sind als Orte der Kommunikation konzipiert: lineare und punktförmige Möbel erlauben den Kindern in unterschiedlichen Konstellationen zu interagieren, Spielpodeste bei den Gruppenräumen und Leseecken an den freundlich hellen Gangabschlüssen bereichern die Erschließungsflächen.
ARCHITEKTUR
Die Richtung der Sichtverbindung beim Betreten wird orthogonal gekreuzt mit der internen Bewegungsrichtung zwischen der westlich gelegenen Krabbelstuben und den beiden im EG gelegenen Kindergartengruppen. Zentral befindet sich hier auch die vertikale Erschließung über die einläufige Stiege. Parallel dazu liegt, näher beim Eingang, auch die vorbereitete Anbindung der Erweiterung, die als eigener Bauteil geplant und lediglich durch das Entfernen eines Fensters mit der ersten Bauetappe verbunden werden kann.
Zwischen den Gebäudeelementen Krabbelstube, Aula/Mehrzweck-/Multiräume und Kindergartengruppen werden Freibereiche gebildet, die jeweils einen gedeckten Zugang zu Terrasse und Garten schaffen und angebunden sind an die Garderoben- und SanitärbereicheEbenso können sich die beiden Krabbelstubengruppen den Ruheraum teilen, der aber auch jeweils separiert genutzt werden kann.
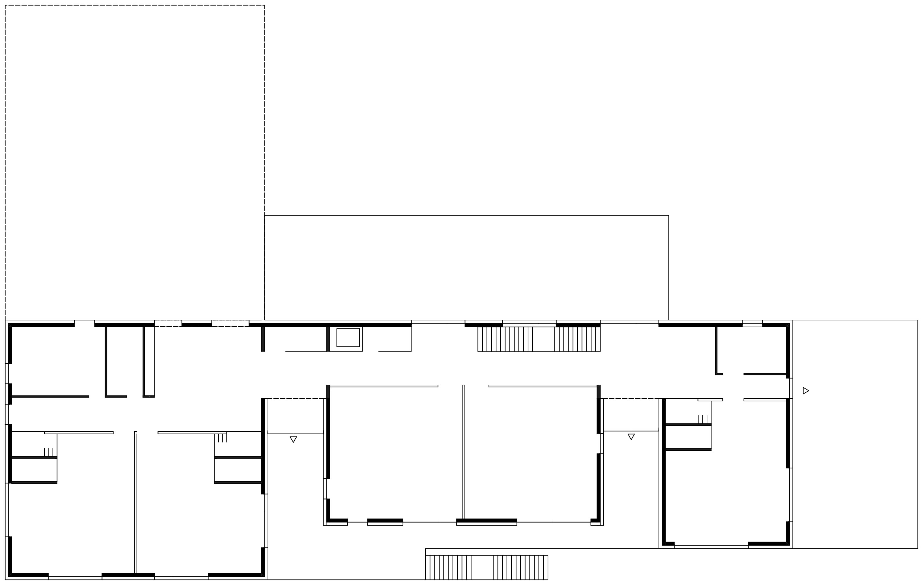
Diese strukturelle Gliederung wird im Obergeschoß fortgesetzt. Die Gangfläche öffnet sich nach Norden, die Zwischenbereiche zwischen den Gruppen und Bewegungsräumen bilden zum Erdgeschoß analoge Zugänge nach draußen auf die längliche, südostseitig orientierte Terrasse. Der östlichen Gruppe vorgelagert liegt eine weitere, ungedeckte Terrasse. Während jene über eine Stiege mit dem Erdgeschoß verbunden ist, führt von dieser eine Rutsche in den Garten.
MATERIALITÄT
Das architektonische Konzept der Kinderbetreuungseinrichtung als Wechselspiel zwischen horizontalen und vertikalen, punktförmigen und linearen Bauteilen wird in der materiellen Ausformulierung fortgesetzt. Kompakte Gebäudeelemente werden durch horizontale Deckenelemente zusammengefasst, die annähernd quadratischen Fenster durch vertikale Teilungen rhythmisiert. Die Fassade selbst wird als Putzfassade ausgebildet, wobei die Oberfläche bei flächigen und horizontalen Bauteilen unterschiedlich strukturiert wird und so die architektonischen Charakteristika unterstreicht. Das extensiv begrünte Flachdach bildet den obersten, horizontalen Abschluss des Entwurfs.





