
LOAW
Planung 2023-2024 / Realisierung 2024-2025
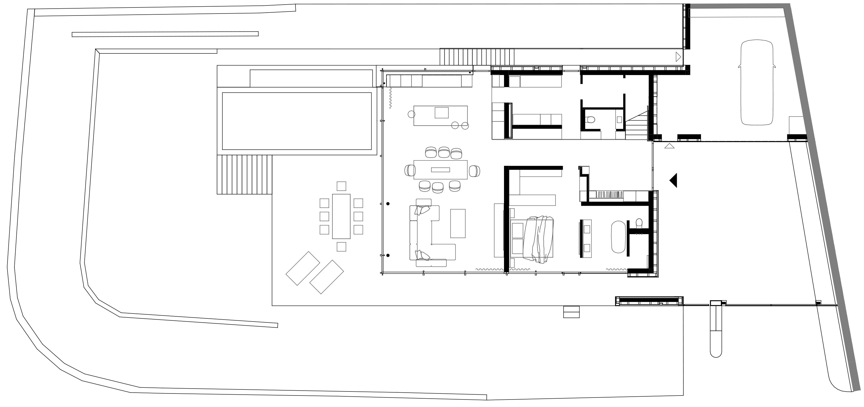
TOPOGRAFIE & BAUKÖPERSETZUNG
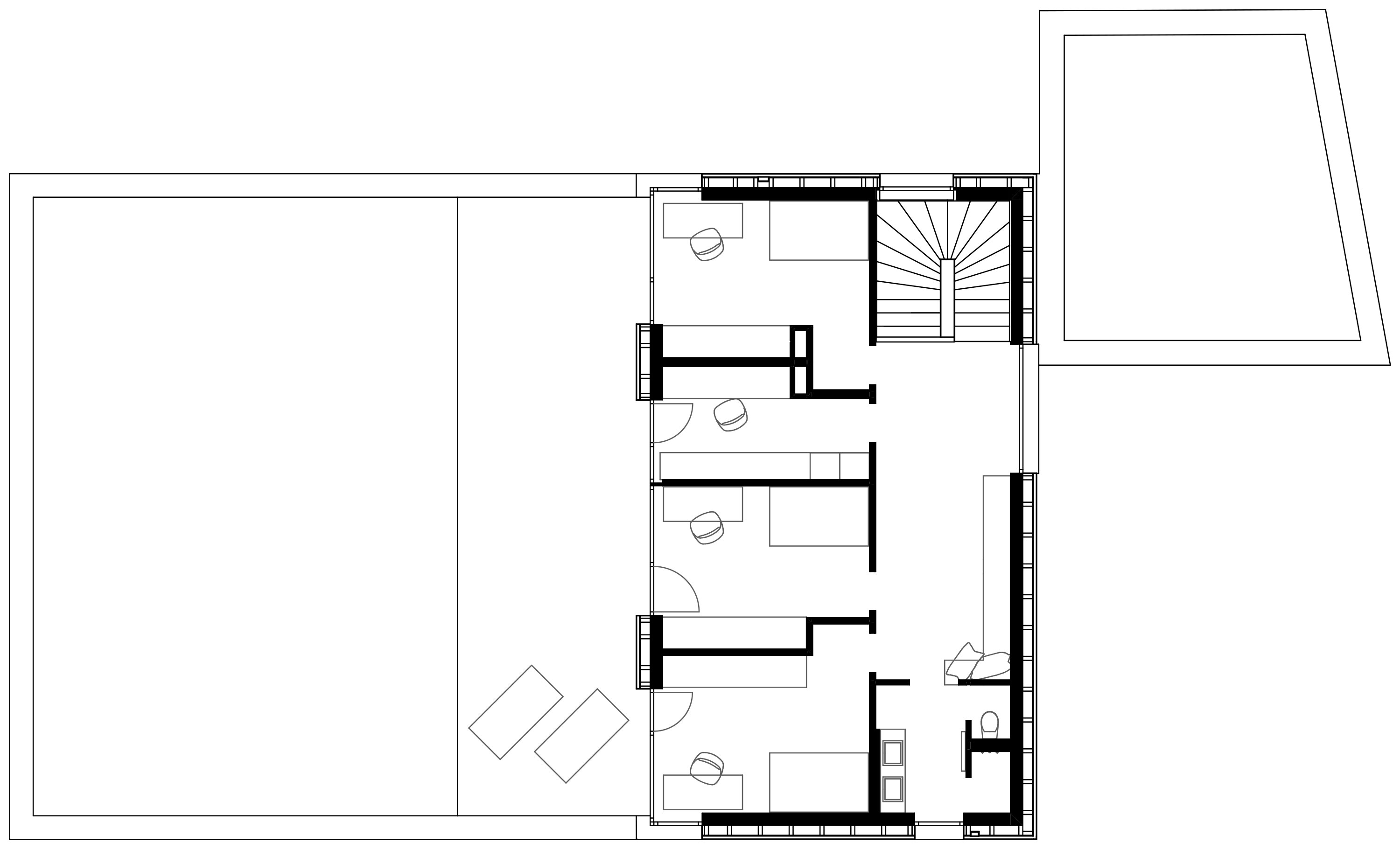
Impulsgeber für den Entwurf am Stadtrand von Linz ist die vorhandene Topografie. Das steil abfallende Hanggrundstück erfordert das Denken in Schichten. Die unterste Schicht aus Fundierung und Böschung bildet den Sockel, die Basis für die Bebauung und auch für die zweite Ebene, den Garten. Dieser umhüllt den Baukörper und sorgt für weiche Übergänge vom Draußen ins Drinnen. Die dritte Schicht wird durch ein geerdetes Plateau gebildet und stellt als Wohnebene die zentrale Etage des Gebäudes dar. Die vierte Schicht setzt sich als Rückzugsebene darauf. Die Anordnung horizontaler Schichten in der schrägen Ebene des Grundstücks erfordert eine versetzte Anordnung in der Baukörpersetzung. Talseitig folgt das Gebäude der Abtreppung des Hangs und erscheint dank einer auskragenden Gestaltung als fliegendes Dach über dem Sockel. Auf der gegenüberliegenden Seite stellt sich das Gebäude als zweigeschoßiger Baukörper dem aufsteigenden Hang entgegen. Die Deckenplatten wirken gleichermaßen trennend und verbindend zwischen den Schichtungen und ragen als auskragende Dächer in die Landschaft.
LEITGEDANKE
Die Funktionsaufteilung im Inneren wird durch ein System aus Bezugsachsen geordnet. Diese Achsen legen sich wie ein Netz aus Wegverbindungen über den Grundriss und gliedern diesen in funktionaler Hinsicht. Gleichzeitig durchfluten sie das Gebäude als Sichtverbindungen außen - innen - außen. Dabei ergibt sich eine hierarchische Ordnung, in welcher die Mittelachse in Längsrichtung den zentralen Leitfaden bildet. Das Spiel von Innen und Außen zieht sich durch den gesamten Entwurf. Die weit ausladenden Dächer rahmen die Landschaft, halten sie fest und ziehen sie dank der großzügigen Glaselemente ins Innere des Gebäudes. Die Ausformulierung als Gründach verstärkt diesen Effekt und kann als Fortschreibung des grünen Umlands gelesen werden.
MATERIALITÄT
An der Außenhülle des Gebäudes sorgt die Fassadengestaltung mit hinterlüfteten HPL-Platten für ein einheitliches Erscheinungsbild. So ergibt sich die Einbettung eines dunkelgrauen, monolithischen Baukörpers ins Gelände. Je nach Lichteinfall erscheinen verschieden orientierte Fassadenflächen in unterschiedlichen Reflexionen. Während die Deckenuntersichten geometrisch ins Gebäude verlaufen, bildet das Innere in der Ausgestaltung der Materialitäten einen Kontrast zum Äußeren aus. Helle Oberflächen an Boden, Wänden und Decken führen das Sonnenlicht durchs Gebäude. Raumbildende Einbaumöbel führen durch die Zimmer und sorgen mit ihrem Kleid aus Nussholzfurnier für eine optische Wärme.
KONSTRUKTION
Die Gestaltungsansprüche fast schwebend wirkender Decken- und Dachscheiben brachten konstruktive Herausforderungen mit sich, welche durch die Tragwerkskonzeption mit dem Verbundwerkstoff Stahlbeton gelöst wurden. Teilweise über zehn Meter auskragende Deckenplatten werden von wenigen, gezielt gesetzten Wandscheiben getragen. Im Wohnbereich sorgen vier schlanke Stahlstützen dafür, dass die Überdachung kaum den Boden berührt. Ermöglicht wird dies auch durch die Ausführung als sehr flach geneigtes Walmdach mit erhöhter Mittelzone. Dadurch ergeben sich die konstruktiv schlanken Dachränder. Die Außenhülle ist als Holzriegelbau konzipiert und bildet gleichermaßen die Unterkonstruktion für die Zellulosedämmung und die hinterlüftete Plattenfassade. Damit ergibt sich ein hybrider Baukörper in Holz- und Betonbauweise.







