SCHULZENTRUM ROHRBACH-BERG
Fertigstellung 1. Bauabschnitt VS 07/2023 / Fertigstellung 2. Bauabschnitt MS 09/2024, GTS 02/2025
1. Preis geladener Wettbewerb 2018
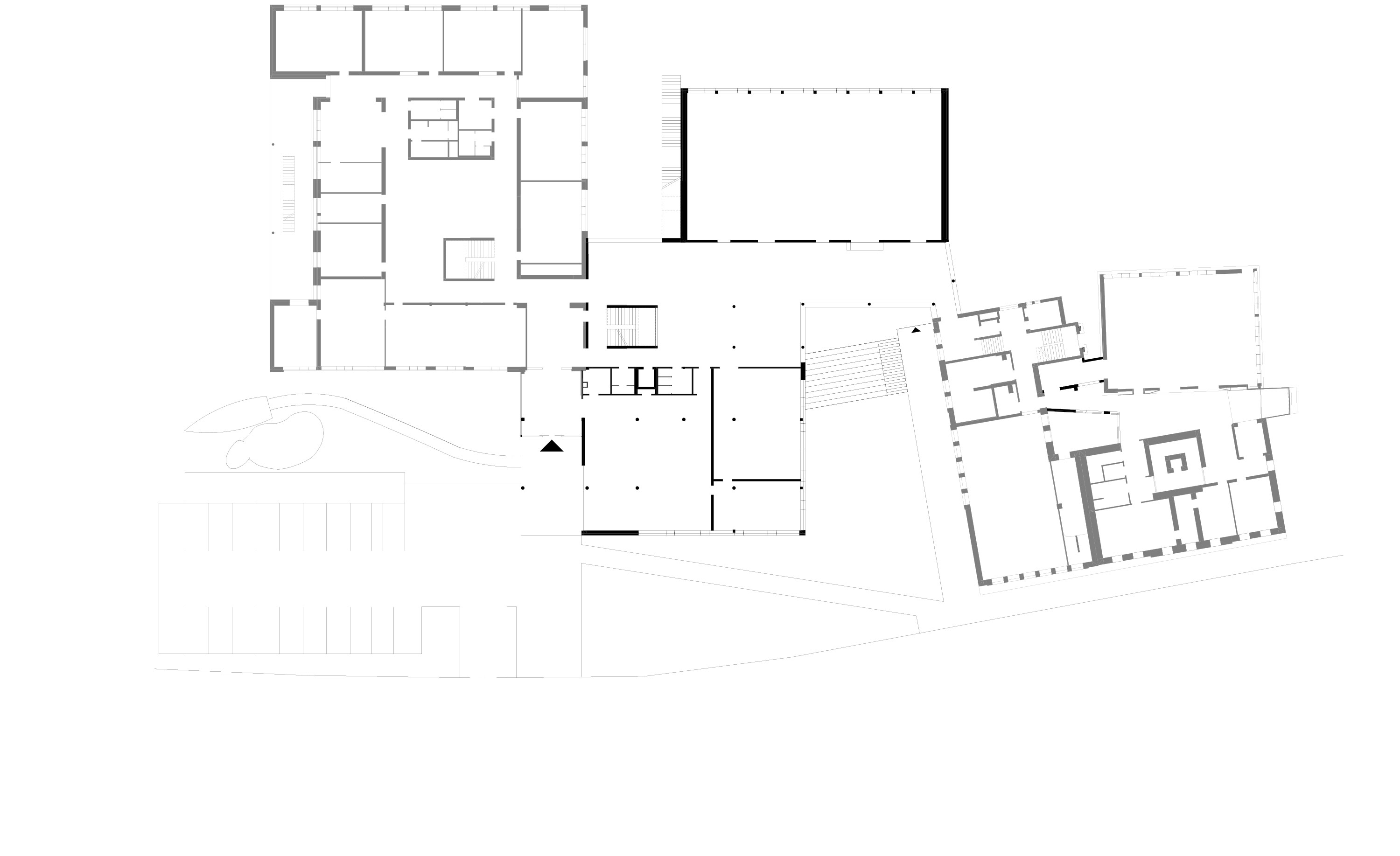
Die Bezirkshauptstadt Rohrbach-Berg im Mühlviertel führt mehrere Schulen an einem Standort zum Schulzentrum zusammen – Volksschule, Mittelschule, Nachmittagsbetreuung und Sozialeinrichtung. Die Bestandsgebäude am Standort werden adaptiert und umgebaut. Der Entwurf, der aus einem Architekturwettbewerb als Sieger hervorging, fügt zwischen den Bestandsgebäuden der Mittelschule, der Musikschule und des Turnsaal-Traktes mit denkmalgeschützter Fassade zwei kubische Neubaukörper hinzu. Das Zusammenspiel dieser Kuben mit dem Bestand und der Topographie - die schachbrettartig versetzte Anordnung der Gebäudeteile und die Ausformulierung unterschiedlicher Gebäudehöhen lassen ein kohärentes Ensemble entstehen, dass zwischen den einzelnen Gebäudeteilen unterschiedlich programmierte Außenräume definiert.
Über den Parkplatz an der Linzer Straße wird die Vorfahrt für Schüler mit Beeinträchtigung gewährleistet. Schüler, die mit dem Rad ankommen, können dieses im Untergeschoß der Volksschule abstellen. Ein neu errichteter Gehsteig entlang des Schulgeländes führt die Schüler zum Zugangsbereich der Schulen. Im Nahbereich der Sitzstufen der Schularena erfolgt der Zugang für die externe Nutzung des Turnsaals.
Ein befestigter Vorplatz führt von der Linzer Straße zum Eingang, und von dort direkt in das Zentrum der Schule – ins „Herz der Schule“. Die Auskragung des Obergeschoßes gewährleistet ein witterungsgeschütztes Ankommen der Schüler. Der Eingang führt auf die Magistrale, die alle Schulteile von der Mittelschule bis zur Landesmusikschule verbindet und entlang derer die Bereiche und Räume des „Herz der Schule“ angeordnet sind. Neben der Garderobe rechterhand des Eingangs und den Verwaltungsräumen links davon führt die Halle unmittelbar nach dem Windfang zu den beiden Hauptstiegen von Mittelschule und Volksschule.
Die Ausspeisung, die Bibliothek und ein Bereich für Vorträge, Ausstellungen und ähnliche Veranstaltungen nehmen die die zentralen Flächen im Erdgeschoß ein. Vorgelagerte Terrassen verbinden Innen- und Außenräume.
Die Nutzungsverteilung des Entwurfes sieht vor, dass die Ganztagesbetreuung zur Gänze im Turnsaal-Trakt untergebracht ist. Ein Aufzug als Durchlader verbindet alle Ebenen und Bereiche im Übergang vom Schulgebäude zur Ganztagesschule mit Gymnastiksaal barrierefrei. Ein Verbindungsgang gewährleistet die funktionale Anbindung zur Musikschule.
Der nach Westen orientierte Turnsaal ist zusammen mit den Nebenräumen im Untergeschoß angeordnet. Fensteröffnungen zum Pausenraum im EG ermöglichen eine beidseitige Belichtung des Turnsaals.
Die Konzeption der Baumassen lässt Zonierungen im Außenraum entstehen, die mit unterschiedlichen Freiraumqualitäten gedacht sind – Der Vorplatz im Osten zur Linzer Straße, eine Schularena mit Sitzstufen für Aufführungen zwischen Bestand und Volksschule, der Schulgarten als Ruhebereich im Westen des Bildungszentrums, der bestehende Sportplatz, die Spielwiese im Süden lassen vielfältige Qualitäten im Außenraum entstehen.
Das Schulzentrum Rohrbach-Berg ist eine „Marktplatzschule“. Eine offene geschossweise Raumkonfiguration von drei bis vier Klassen orientiert sich um einen zentralen Marktplatz. Dieser bietet Raum für vielfältige Lehr- und Lernsituationen. Auch der Unterricht im Freien ist durch, den Marktplätzen zugeordnete Terrassen, möglich.
Das Kunst am Bau-Projekt „Sprachlandschaften“ besteht aus „Poesie-Bändern“ als Metapher des Weges durch eine Landschaft. Im „Herz der Schule“ besiedeln lyrische Silbenketten die Bibliothek und markieren den Ausgangspunkt der Spruchbänder als Botschafter der Literatur durch das gesamte Schulzentrum.
















