
VOLKSSCHULE UND KINDERBETREUUNG SCHALCHEN
Baubeginn 2024 / Fertigstellung 2026
1. Preis Wettbewerb 2019
Die Marktgemeinde Schalchen liegt im westlichen Oberösterreich, eingebettet in die sanft hügelige Landschaft des Innviertler Hügellandes. Das Grundstück für den Neubau der Volksschule mit integrierter Kinderbetreuungseinrichtung befindet sich in unmittelbarer Nähe zum Ortszentrum, zwischen der Brunnbachstraße und der Hummelbachstraße, westlich des Brunnbaches. Durch seine zentrale Lage und die ebene Topografie bietet es ideale Voraussetzungen für einen zukunftsweisenden Bildungsstandort.
Aus einem von der Gemeinde ausgelobten Architekturwettbewerb ging 2019 ein Entwurf in Holzmassivbauweise als Siegerprojekt hervor. Der Baubeginn erfolgte 2024, die Fertigstellung ist für 2026 geplant.
Bildungseinrichtung als kleinteiliges Ensemble mit vielfältigen Freiräumen
Die Architektur des Projekts orientiert sich stark an der Maßstäblichkeit und Struktur des Ortes. Durch die schachbrettartige Versetzung der Baukörper und differenzierte Gebäudehöhen entsteht ein gegliedertes, kleinteiliges Ensemble. Diese Anordnung ermöglicht die Ausbildung klar definierter Zwischenräume mit unterschiedlichen Nutzungen: ein einladender Schulvorplatz, ein geschützter Schulhof, vorgelagerte Aufenthaltszonen für Turnsaal und Kinderbetreuung sowie vielfältige Spielbereiche für Kindergarten und Krabbelstube.
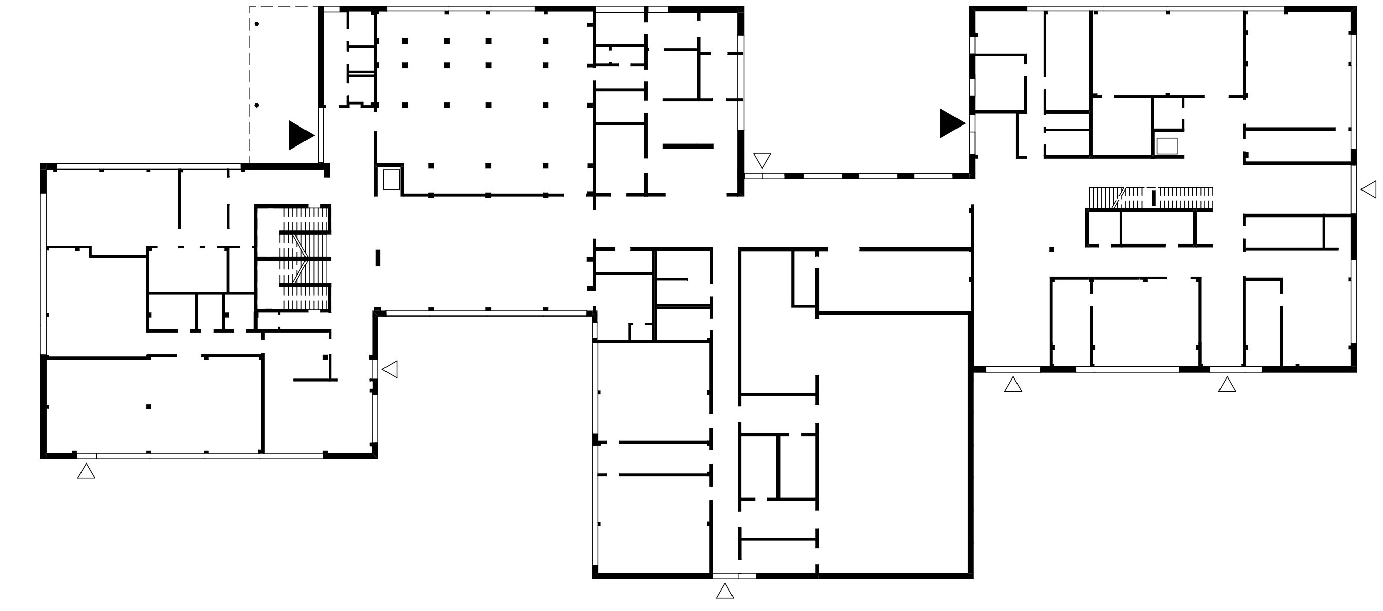
Struktur und Erschließung
Der Haupteingang der Volksschule führt über einen Windfang direkt in die zentrale Aula mit vorgelagertem Schulhof. Die Auskragung des Obergeschoßes bildet einen witterungsgeschützten Übergang, der ein angenehmes Ankommen für Schüler und Besucher ermöglicht. Als „Patschenschule“ konzipiert, ist die Zentralgarderobe unmittelbar vom Eingang erreichbar.
Eine zentrale Magistrale verbindet alle Bereiche des Gebäudes: Volksschule, Turnsaal, Kinderbetreuung, Werkbereich, Ausspeisung und Nachmittagsbetreuung. Eine zweiläufige Treppe führt in die Obergeschosse, wo sich drei Lernbereiche in Clusterform befinden. Jeder dieser Clustereinheiten besteht aus Klassenräumen, einem zentral gelegenen Marktplatz mit zwei Belichtungsrichtungen, Differenzierungsräumen und allen notwendigen Nebenflächen. Die Lerncluster fördern durch ihre Organisation zeitgemäße pädagogische Konzepte wie offenes Lernen und individuelle Förderung.
Der Turnsaal befindet sich gemeinsam mit den Werkräumen im mittigen Gebäudeteil des Ensembles. Die Turnsaalnebenräume sind direkt vorgelagert und längsseits des Turnsaals angeordnet. Von dieser Erschließungsstruktur sind ebenfalls die Werkräume erschlossen. Die dislozierte Anordnung beider Nutzungen trägt zu einem effektiven Schallschutz der übrigen Bereiche bei.
Die Nachmittagsbetreuung ist im Erdgeschoß im Süden des Schultraktes untergebracht und öffnet sich über einen eigenen Zugang direkt zum Garten. Diese räumliche Anbindung an den Außenraum ermöglicht die Integration vielfältige Spiel- und Bewegungsangebote.
Die Kinderbetreuung im Osten des Gebäudeensembles ist wie folgt strukturiert: Im Erdgeschoß ist die Krabbelstube mit zwei Gruppen und eine Kindergartengruppe untergebracht, im Obergeschoß drei weitere Gruppen des Kindergartens. Ein markanter Steg verbindet das Obergeschoß mit dem vorgelagerten Rodelhügel und bindet den Kindergarten direkt an den großzügig gestalteten Garten an. Die Außenspielflächen bieten vielseitige Spiel- und Aufenthaltsqualitäten und fördern altersgerechte Bewegungsangebote.
Im nördlichen Gebäudeteil befindet sich die Produktionsküche, welche die Schüler täglich mit frisch zubereiteten Mahlzeiten versorgt. Die Anlieferung erfolgt getrennt vom Haupteingang und gewährleistet so einen reibungslosen Ablauf im Betrieb.
Materialität und Energie
Die gesamte Anlage ist – mit Ausnahme der Erschließungskerne – in Holzmassivbauweise ausgeführt. Die Decken werden mit einer Splittschüttung versehen, um notwendige Speichermasse sowie erhöhten Schallschutz sicherzustellen.
Die hinterlüftete Fassade aus langlebigen HPL-Platten ermöglicht nicht nur geringen Wartungsaufwand, sondern auch eine klare gestalterische Differenzierung. Der charakteristische Grünton, eine Referenz an die alte Volksschule neben dem Gemeindeamt, wird in der Kinderbetreuung als Fassadenfarbe sowie bei der Volksschule als Akzentfarbe der Faschen eingesetzt und symbolisiert so gleichzeitig die Zusammengehörigkeit des gesamten Ensembles als auch die Individualität der einzelnen Einrichtungen.
Das Gebäude wird an das örtliche Nahwärmenetz angeschlossen, eine Photovoltaikanlage ist vorgesehen. Zudem wird ein Notstromaggregat errichtet, das im Krisenfall zur Versorgung der Gemeinde herangezogen werden kann.






